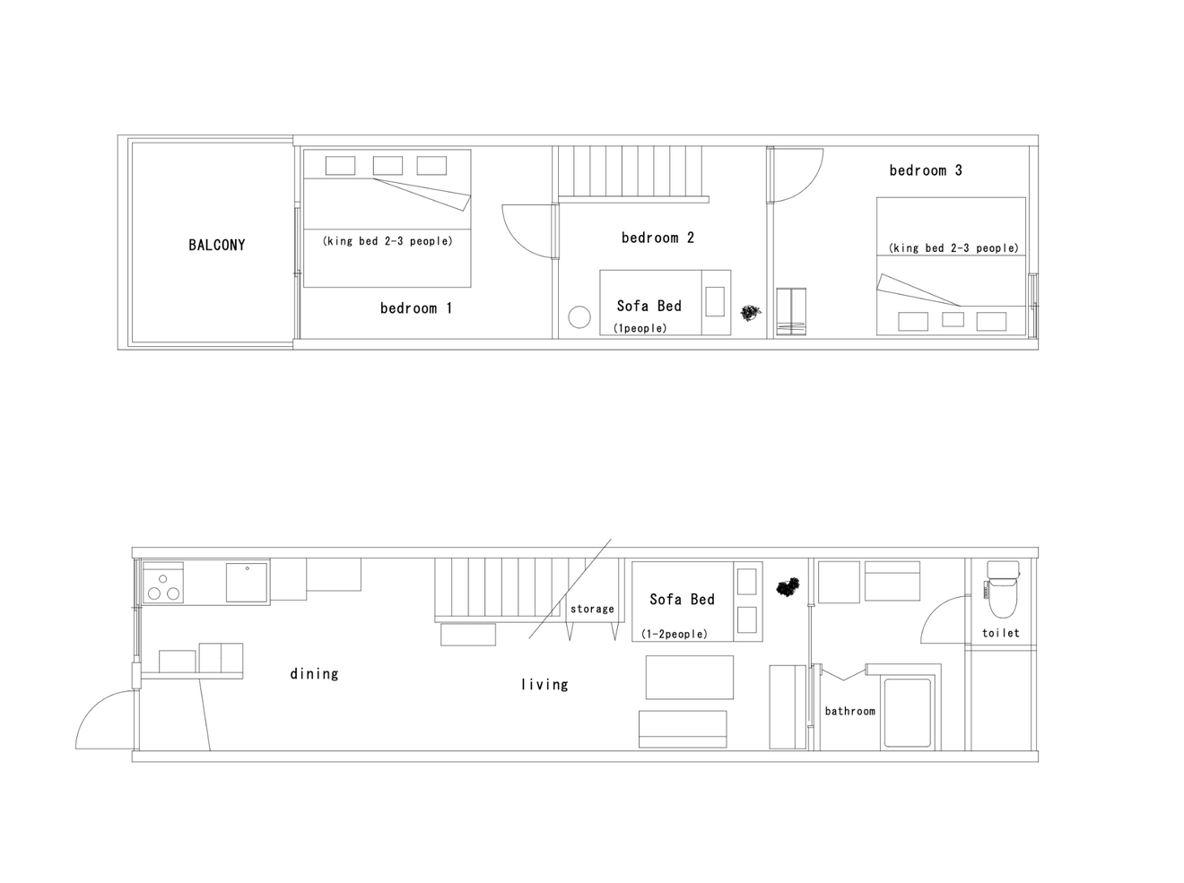
いろいろな図面を作成、トレース、お手伝いします!

  • 出品日:2025/10/05
  • 更新日:2025/11/30

【安心の実績多数】Jw_cad図面の作成・トレース・加筆修正を丁寧に対応。丸投げOK! 複雑なものもわかりやすく作図します。建築、インテリアに限らず金物など幅広い種類の作図面に対応します!

いいね
1
やりとり中
0
/残り1

トラブル時の補償について

サービスの詳細

お届け目安
作業開始からサービス提供が完了するまでの目安です
7
無料修正回数
3

ご覧いただきありがとうございます!✨
二級建築士のグルミットです。 🐶

Jw_CADを使って手書き図面のトレースや簡単な作図のお手伝いをします!

- 手書きで書いた図面をデータ化したい
- 作図を手伝って欲しい。
- 金物等の詳細図を描いて欲しい。
- DIYの図面をCAD化したい。
などなど色々ご相談頂けたら幸いです。
お忙しい皆様の作図の時間をカットして、あなたのお仕事の効率化にお手伝いします♪

▼価格は図面枚数や内容によって応相談させて下さい。

▼納品は、PDFやJWW形式、DWG形式を想定しています。

▼稼働時間
・会社勤めのため、基本土日もしくは、本業就業後になります。
当日に連絡の返信はできない場合がございますが、その場合、メールは翌日までに連絡いたします。
・納期に関しては別途相談させて下さい。

▼お支払い
・納品後、お振込をお願いします。

【自己紹介】
私は、2級建築士で、25年以上建設業界に従事して参りました。
ゼネコン現場、工務店現場、オフィス工事、店舗工事、住宅現場など、さまざまな種類の現場を経験。
職種がいろいろであったため、建設会社だけでなく、幅広く色々な工種の方々とお話し出来ます。
お問い合わせ頂けたら、いろいろ相談にのれると思います。
<簡単な経歴>
・建築の施工図作成会社でJw_CADを習得し、数十件を担当。
・シャッターメーカーで生産設計を担当し、作図をしながらゼネコンと納まり打ち合わせを数百現場経験。
・看板会社で、営業と現場管理を兼任しながら、数百現場を納めて来ました。諸官庁申請も対応。
<取得資格>
2級建築士
屋外広告士
第二種電気工事士

続きを読む 閉じる

キャンセル時の注意事項

・開始後のキャンセルにつきましては、そこまでの料金を請求させていただく場合がございますので、ご了承願います。

スキル

私は、建設業界が長く、職種はいろいろですが、25年以上建設業界に従事して参りました。
ゼネコン現場、工務店現場、オフィス工事、店舗工事、住宅現場など、さまざまな種類の現場を経験。
職種がいろいろであったため、建設会社だけでなく、幅広く色々な工種の方々とお話し出来ます。
お問い合わせ頂けたら、いろいろ相談にのれると思います。
<簡単な経歴>
・建築の施工図作成会社でJw_CADを習得し、数十件を担当。
・シャッターメーカーで生産設計を担当し、作図をしながらゼネコンと納まり打ち合わせを数百現場経験。
・看板会社で、営業と現場管理を兼任しながら、数百現場を納めて来ました。諸官庁申請も対応。
<取得資格>
2級建築士
屋外広告士
第二種電気工事士

質問コメント

※コメントするには会員登録が必要です

コメントはありません

送信中...

依頼した人の感想

依頼者

jXq9mCwvCnbqyvqDYzPvz3Y9dyl1

2025/11/26

いいねされました! 最初にCAD、立体、手書きの3タイプで図面をご提案いただき、その後もこちらの希望を何度も丁寧に聞いてくださり、大変助かりました!!
仕上がりにも大変満足しており、プロが作成する図面はやはり素晴らしいと感じました✨
この度はありがとうございました😊

送信中...
価格の目安
3,000