建築CADでの製図を承りますm(_ _)m

  • 出品日:2025/02/03
  • 更新日:2025/11/16

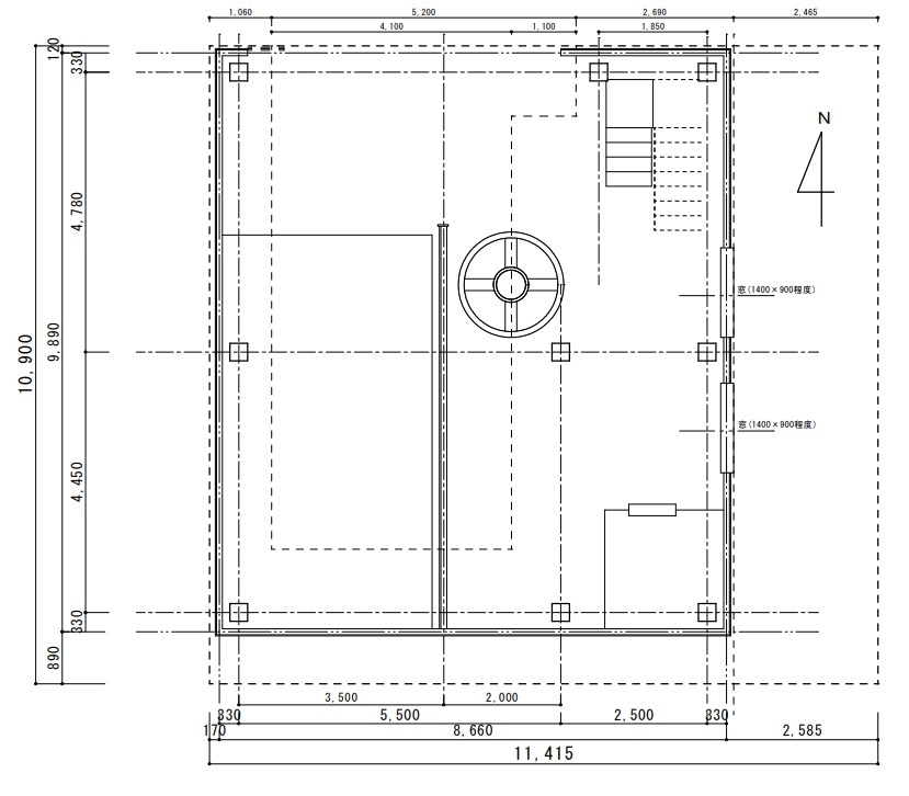
部屋や建物の図面をJWW CADで作成します。 古い建物や実測図などを図面化して、改修案やレイアウト変更を検討してみませんか?

いいね
1
やりとり中
0
/残り2

トラブル時の補償について

サービスの詳細

お届け目安
作業開始からサービス提供が完了するまでの目安です
5
無料修正回数
2

✅ご提供するサービス
「図面を見ながら考えたい」ときに必要な図面を作成します。
●今の部屋を図面にしたい(事務所や家具什器のレイアウト検討、改修検討)
●古い図面をデータ化したい(手描き設計図のデータ化)
●リフォームを重ねた部屋をデータ化したい(図面が無い、現状状態を図面データ化)
●現地調査(メモ手描き図)のデータ化([工務店様]現地調査図の平面・展開図の作成)

✅ご検討いただく際のお願い
・ご提供資料から図面製作します。不明寸法は分一(ブイチ)または経験則的に記載するようします。
・価格は、ヒアリング/必要図面/サイズ、枚数などからお見積りいたします。
 →簡単な平面図で4,000円~、図面種類(展開図や詳細図など)や数によって変動します。
・納期は別途ご相談させていただきます。(時期にもよりますが4~8日前後とお考え願います。)
・修正回数は2回までご対応します。

✅連絡方法
・リベシティDM

✅納品形式
・JWW CADで製図します。
・.jww及びpdfデータで納品します。

✅お支払い方法
・リベポイント、銀行振り込み(住信SBI銀行)

お読みいただき、ありがとうございました。
ご興味ありましたらお問い合わせのほどをお願いいたします。

続きを読む 閉じる

スキル

ゼネコン及び工務店勤務経歴があり、工務店時代は室内リフォームから増築の基本~実施図面の作成、ゼネコン時代は施工図製図などを行っておりました。
立面、断面及び展開図も製図できますので、実務方の作業もお声がけください。

質問コメント

※コメントするには会員登録が必要です

コメントはありません

送信中...

依頼した人の感想

依頼者

gXvVkgGtFqWkUQScfYWpNoF8AUK2

2025/11/16

いいねされました! ありがとうございました、細かく丁寧な対応に心から感謝しております。助かりました^_^

送信中...
価格の目安
4,000